![]()
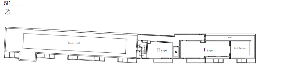
| 5F | 階 段 |
501 1R Hタイプ 23.70㎡ |
EV | 502 1LDK lタイプ 47.66㎡ |
ルーフバルコニー | |||||||
| 4F | 401 1LDK Eタイプ 48.76㎡ |
402 1R Fbタイプ 24.93㎡ |
403 1R Faタイプ 24.93㎡ |
404 1K Fbタイプ 24.93㎡ |
405 1K Gタイプ 24.86㎡ |
406 1R Hタイプ 23.70㎡ |
407 1R C1タイプ 24.93㎡ |
408 1R C2bタイプ 24.93㎡ |
409 1R C2aタイプ 24.93㎡ |
|||
| 3F | 301 1LDK Eタイプ 48.76㎡ |
302 1R Fbタイプ 24.93㎡ |
303 1R Faタイプ 24,93㎡ |
304 1R Fbタイプ 24.93㎡ |
305 1R Gタイプ 24.86㎡ |
306 1R Hタイプ 23.70㎡ |
307 1R C1タイプ 24.93㎡ |
308 1R C2bタイプ 24.93㎡ |
309 1R C2aタイプ 24.93㎡ |
310 1R Dタイプ 28.32㎡ |
||
| 2F | 201 1LDK Eタイプ 48.76㎡ |
202 1R Fbタイプ 24.93㎡ |
203 1K Faタイプ 24.93㎡ |
204 1R Fbタイプ 24.93㎡ |
205 1R Gタイプ 24.86㎡ |
206 1R Hタイプ 23.70㎡ |
207 1R C1タイプ 24.93㎡ |
208 1R C2bタイプ 24.93㎡ |
209 1R C2aタイプ 24.93㎡ |
210 1R Dタイプ 28.32㎡ |
||
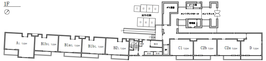
| 1F | 101 1LDK ALタイプ 38.10㎡ |
102 1R B1bLタイプ 23.97㎡ |
103 1R B1aLタイプ 23.97㎡ |
104 1R B1bLタイプ 23.97㎡ |
105 1R B2Lタイプ 23.90㎡ |
106 1R C1タイプ 24.93㎡ |
107 1R C2bタイプ 24.93㎡ |
108 1R C2aタイプ 24.93㎡ |
109 1R Dタイプ 28.32㎡ |
|||
| ロフト付き ハイサッシプラン |
ロフト付き ハイサッシプラン |
ロフト付き ハ イサッシプラン |
ロフト付き ハイサッシプラン |
ロフト付き ハイサッシプラン |
||||||||
| 南東向き | ||||||||||||
※東急住宅リース株式会社の Web サイトへリンクします ※空室情報は 代理 東急住宅リース株式会社 にお問い合わせください。 |





|
※東急住宅リース株式会社の Web サイトへリンクします ※空室情報は 代理 東急住宅リース株式会社 にお問い合わせください。 |