1K~2LDK
26.51㎡~52.83㎡(専有面積)
住みごこちを良くする
収納力と設備仕様。
軽やかでアクティブな
ライフスタイルに寄り添う
様々なプランをご用意。
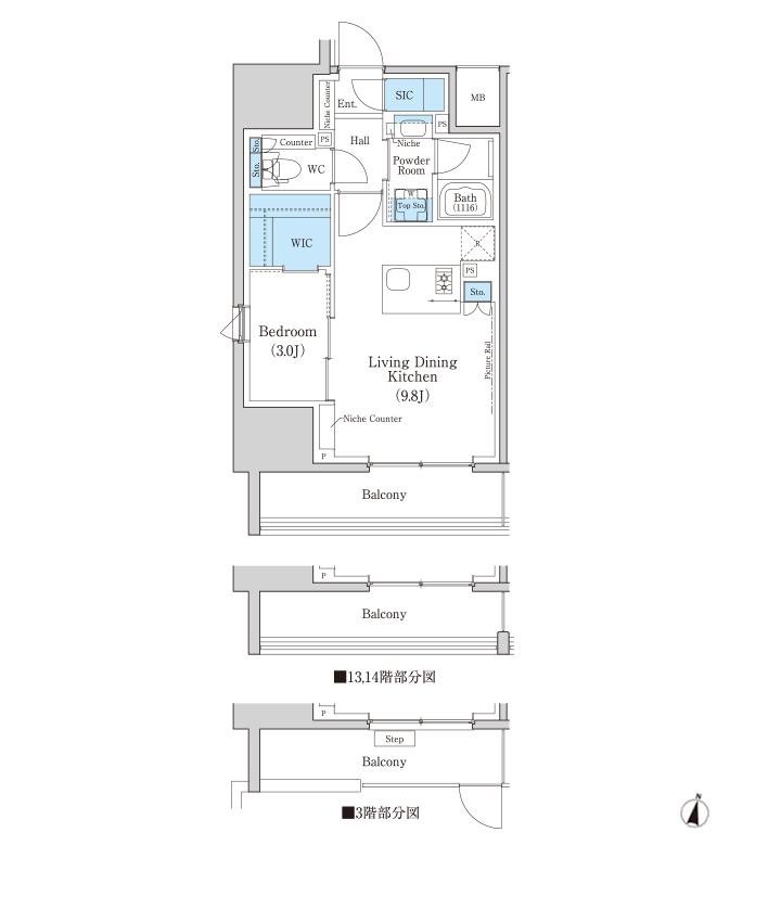
- A type
- 専有面積:41.35㎡/1LDK
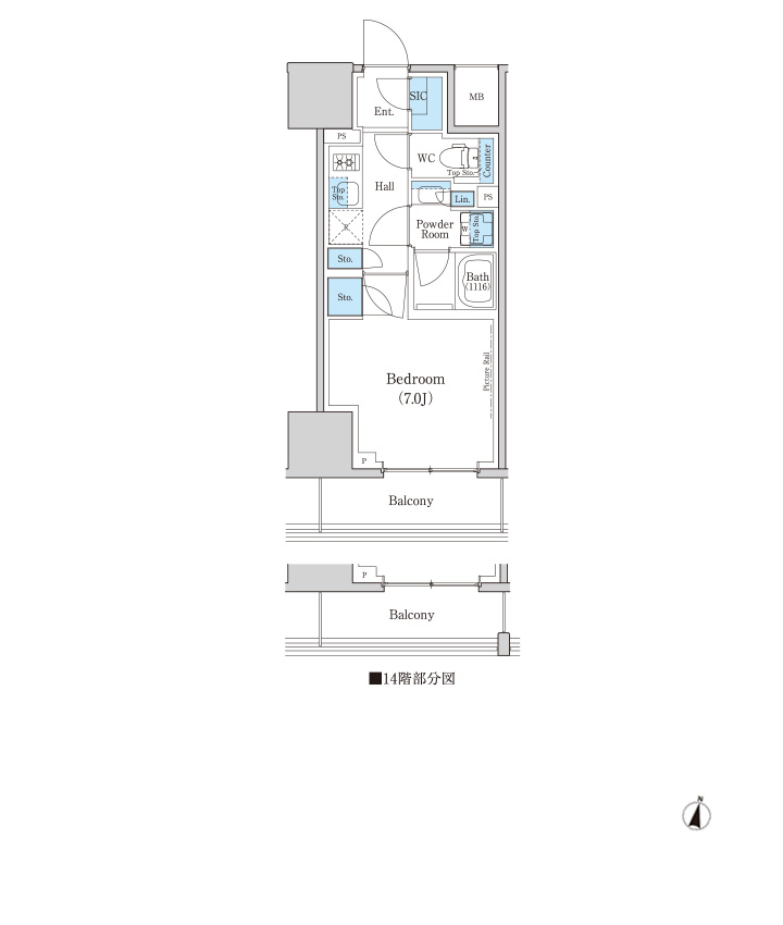
- B1 type
- 専有面積:33.06㎡/1DK
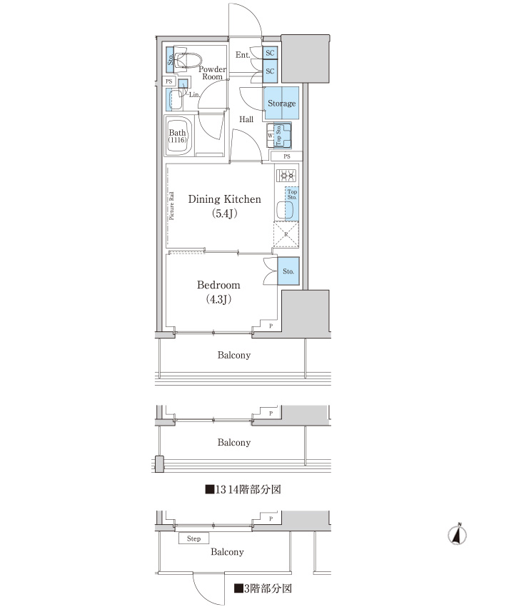
- B2 type
- 専有面積:31.79㎡/1DK
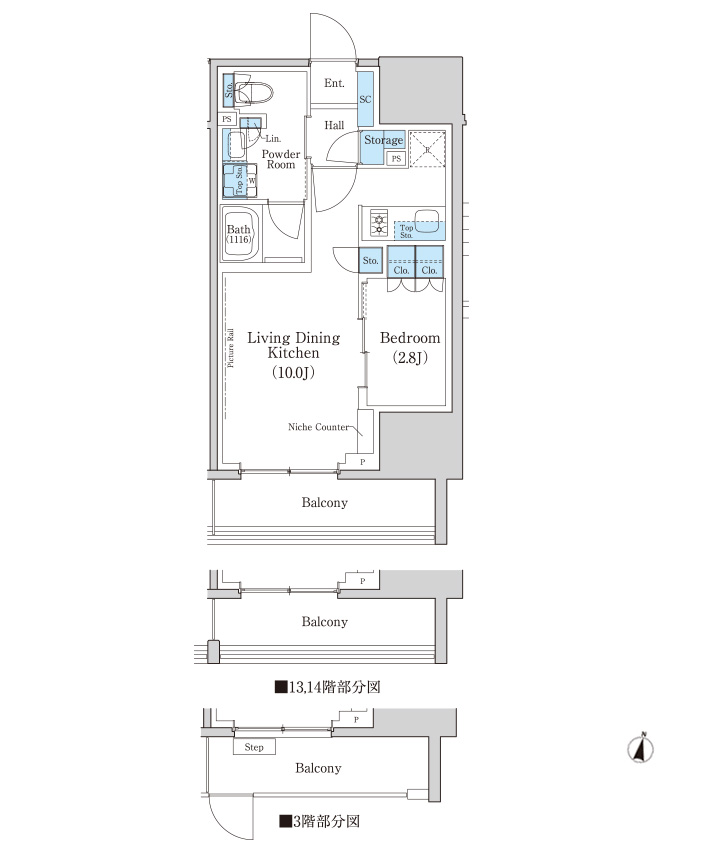
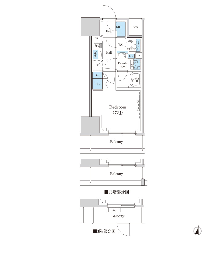
- C type
- 専有面積:52.83㎡/2LDK
- D type
- 専有面積:39.38㎡/1LDK
- E type
- 専有面積:30.03㎡/1DK
- F1 type
- 専有面積:26.51㎡/1K
- F2 type
- 専有面積:26.51㎡/1K
- G type
- 専有面積:35.88㎡/1LDK
賃料・空室情報をみる
※東急住宅リース株式会社の
サイトへリンクします
※空室情報は 貸主 東急住宅リース株式会社
にお問い合わせください。