ルームプラン



案内

3F 301 J 1DK
302 K 1K 303 L 1K
304 M 1K 305 N 1K
306 O 1DK
上部ロフト 上部ロフト 上部ロフト 上部ロフト 上部ロフト
33.59m2
24.04m2
27.02m2
25.20m2
24.35m2
34.48m2
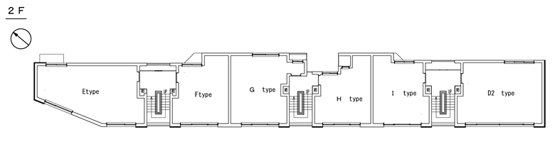
2F 201 E 1DK 202 F 1K 203 G 1K 204 H 1K 205 I 1K 206 D2 1LDK
43.97m2
28.69m2
34.26m2
26.70m2
29.04m2
42.47m2
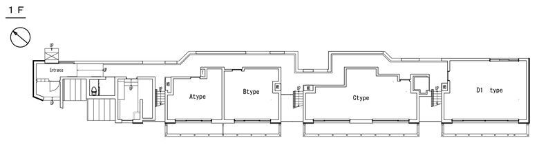
1F エントランス 101 A 1R 102 B 1K 103 C 1DK 104 D1 1LDK
21.67m2
24.54m2
40.21m2
42.47m2
南西向き


※東急住宅リース株式会社の Web サイトへリンクします
※空室情報は 代理 東急住宅リース株式会社 にお問い合わせください。







※東急住宅リース株式会社の Web サイトへリンクします
※空室情報は 代理 東急住宅リース株式会社 にお問い合わせください。

当マンションに関するお問合せ・ご相談はこちらから 03-3343-1311

東急株式会社の住まい 物件情報はこちら